Home Search Results Villa / Duplex / Townhouse CUSTOMISE THIS SDA VILLA FOR YOUR NEEDS!
2 years ago
1242 Views

CUSTOMISE THIS SDA VILLA FOR YOUR NEEDS!

7 English St, South Mackay QLD 4740, Australia
Queensland (QLD)
Property Type: Villa / Duplex / Townhouse
Category: Rental
SDA Designs Type: High Physical Support
Bedrooms: 2
Bathrooms: 2
Toilets: 2
Standard Parking: 1
Number of SDA residents: 1

Dwelling Facilities

Accessible Features
Broadband internet available
Built-in Wardrobes
Cooling
Dishwasher
Emergency Power Backup
Ensuite
Furnished
Good Energy Efficiency Rating
Intercom
Onsite Overnight Assistance
Outdoor Area
Wheelchair Accessible

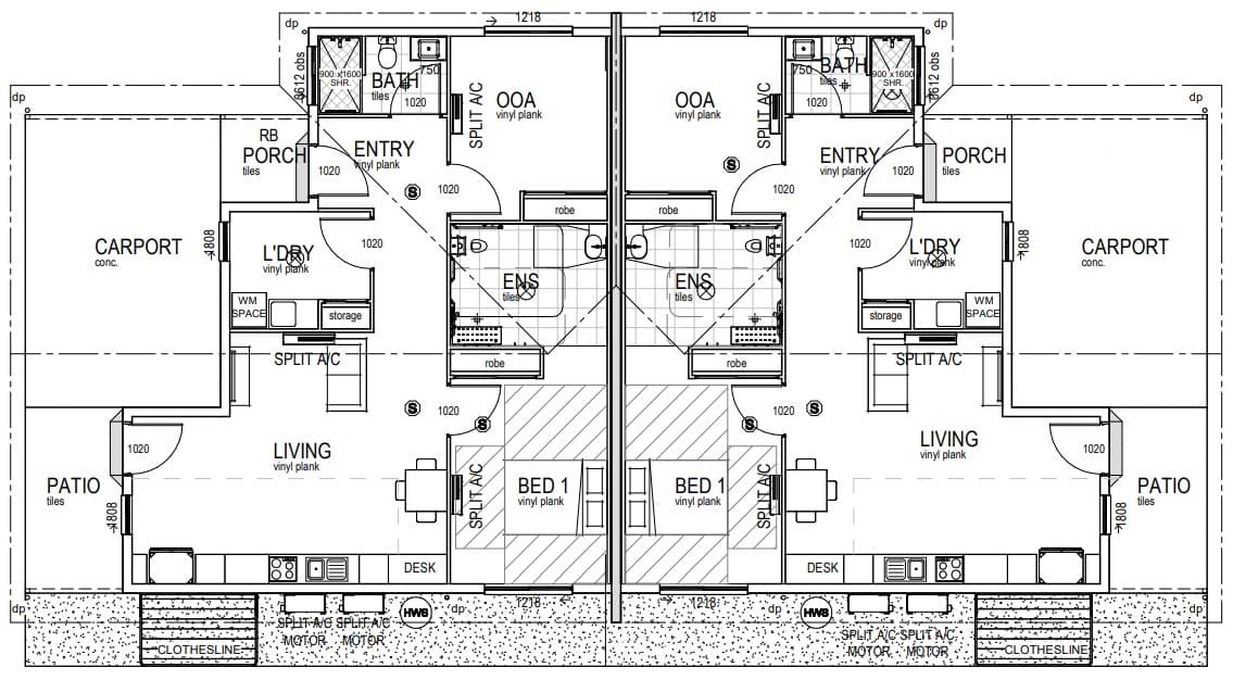
1 HPS + OOA, Ground floor villa, in Mackay

 

Horizon SDA is here to help you obtain Specialist Disability Accommodation. We are SDA Developers and a registered SDA Provider who specialise in High Physical Support homes and villas.

 

This ground floor villa can house one SDA participant, with an OOA Room for a support worker or family member. High physical support ensuite bathrooms, fully air conditioned, security screens, and wheelchair accessible to all internal and external areas.

 

Construction is about to begin, so IF YOU GET IN EARLY WE CAN CUSTOMISE THE VILLA TO MEET YOUR NEEDS. 

 

Equipped with cutting-edge smart-home technology, such as the ability to control lights, blinds, access doors, air conditioning, and intercom systems from a personal device.

 

• 1 HPS bedroom, with HPS ensuite and SDA accessibility options, split system air conditioning and capacity for ceiling hoists if required.

• OOA bedroom for onsite overnight support

• TV in each room

• Modern kitchen with:

       – a height-adjustable bench top,

       – dish drawer dishwasher,

       – Caesarstone benchtops,

       – strip lighting to the overhead cupboards

       – bright lighting, filled with natural light

• Spacious open plan living

• Covered outdoor alfresco dining area

• Separate laundry, with washer and dryer provided.

 

All our SDA houses are designed to the highest specifications and physical support SDA certification criteria and are totally independently 3rd party approved.

 

Contact Michael Knights on 0409 018 778 / michael@horizonpropertyalliance.com.au or Kylie Peirce on 0493 028 591 / k.peirce@horizonsdacare.com.au. for more information.

 

NOTE: All imagery is for illustrative purposes only and represents finishes similar to this property.

Disclaimer

Trusted property platform, SDAPropertyListing.com.au. Explore listings after reading and understanding the provided disclaimer.

©2024 SDAPropertylisting.com.au All rights reserved
Design by OnSolve