Home Search Results Apartment Modern 1-Bedroom Fully Accessible SDA Apartment | Independent Living in Gympie
3 weeks ago
158 Views

Modern 1-Bedroom Fully Accessible SDA Apartment | Independent Living in Gympie

Gympie QLD 4570
Queensland (QLD)
Property Type: Apartment
Category: Rental
$25
SDA Designs Type: Fully Accessible
Bedrooms: 1
Bathrooms: 1
Toilets: 1
Standard Parking: 1
Accessible Parkings: 1
Number of SDA residents: 1

Dwelling Facilities

Accessible Features
Broadband internet available
Built-in Wardrobes
Cooling
Dishwasher
Emergency Power Backup
Ensuite
Good Energy Efficiency Rating
Heating
Intercom
Onsite Overnight Assistance
Outdoor Area
Solar Panels
Wheelchair Accessible

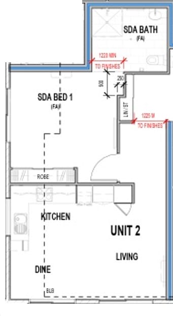
Modern Fully Accessible SDA apartment in Gympie. One bedroom + accessible ensuite, open-plan living, slip-resistant flooring, private courtyard and onsite parking — independent living close to shops, health and transport.

Purpose-Built, Step-Free Living in a Quiet, Connected Location

Experience comfortable, confident, and secure living in this brand-new Fully Accessible (FA) SDA apartment located in the heart of Gympie. Thoughtfully designed for participants who require enhanced accessibility, this 1-bedroom home offers wide, clear movement paths, sensory-friendly finishes, and a calm, low-occupancy environment ideal for independent living.

Location: Gympie, QLD
Design Category: Fully Accessible (FA)
Configuration: 1 Participant Bedroom

Apartment Features

  • Fully Accessible design with luminance contrast, easy navigation, and clear accessways
  • Spacious bedroom with accessible ensuite – safe, private and functional
  • Open-plan kitchen and living area promoting free movement and everyday convenience
  • Slip-resistant flooring throughout for safety and stability
  • Accessible kitchen with generous benchtops, contemporary appliances and ample storage
  • Air-conditioned for year-round comfort
  • Single-level, step-free layout supporting ease, safety and peace of mind
  • Private patio or courtyard – a quiet outdoor space for relaxation
  • Onsite parking for added convenience
  • Low-occupancy complex offering privacy, quiet and a homely feel

Lifestyle & Location – Gympie Fully Accessible SDA Living

  • Enjoy an easy, connected lifestyle close to local amenities:
  • Walking distance to Gympie CBD, cafés, shops and daily services
  • Minutes to medical centres, allied health and public transport
  • Secure, quiet complex that supports safety and independence
  • Delivered by experienced SDA providers with participant wellbeing in mind

Ideal For

  • NDIS participants approved for Fully Accessible (FA) funding
  • Individuals seeking a private, quiet, highly accessible home
  • Participants looking for a low-stimulus environment with modern features
  • Anyone wanting independence with the comfort of a purpose-built apartment

Comfort, Safety & Independence — All in One Home

This Fully Accessible SDA apartment is designed to make everyday living simpler, safer, and more enjoyable.
From thoughtful layout to modern finishes, every detail supports dignity, privacy and long-term independence.

Vacancy available now – enquire today to secure your Fully Accessible SDA apartment in Gympie.

Disclaimer

Trusted property platform, SDAPropertyListing.com.au. Explore listings after reading and understanding the provided disclaimer.

©2024 SDAPropertylisting.com.au All rights reserved
Design by OnSolve