Home Search Results House 1 SDA + OOA + Guest Room, in Torquay
2 months ago
279 Views

1 SDA + OOA + Guest Room, in Torquay

120A Bideford St, Torquay QLD 4655, Australia
Queensland (QLD)
Property Type: House
Category: Rental
$495
SDA Designs Type: Improved Livability
Bedrooms: 3
Bathrooms: 2
Toilets: 2
Standard Parking: 2
Number of SDA residents: 1

Dwelling Facilities

Accessible Features
Broadband internet available
Built-in Wardrobes
Cooling
Dishwasher
Ensuite
Furnished
Onsite Overnight Assistance
Outdoor Area
Wheelchair Accessible

1 SDA + OOA + Guest Room, in Torquay

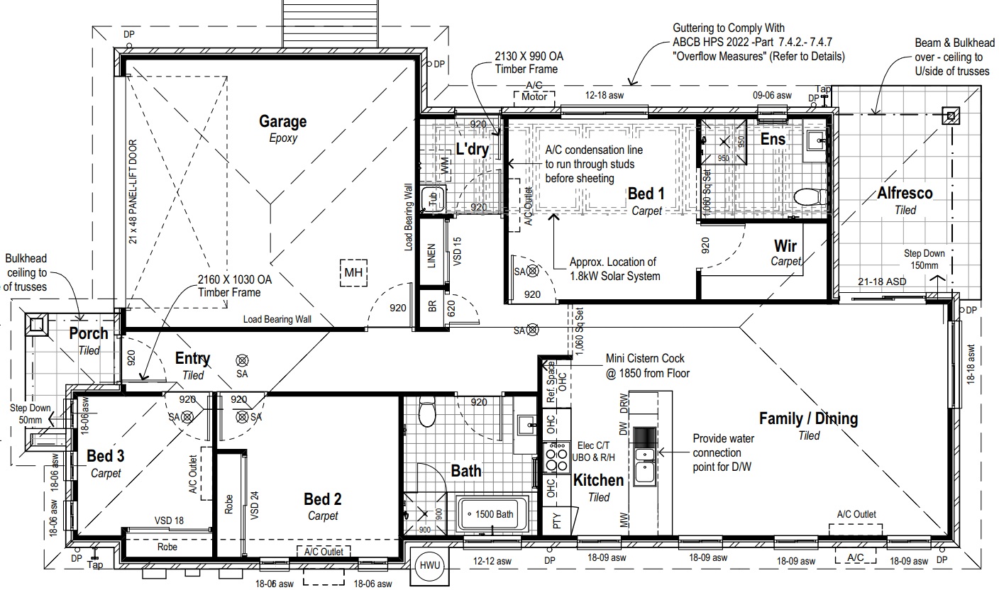
This near new lowset 3 bedroom home is designed for one Improved Liveability participant and comes with a separate guest bedroom for a family member of friend. Fully air conditioned, with wheelchair accessible to all internal and external areas.

* 1 SDA bedrooms, with ensuite and SDA accessibility options, and split system air conditioning

* OOA bedroom for onsite overnight support

* Separate guest bedroom

* Spacious open plan living

* Double lock up garage

Horizon SDA is here to help you obtain Specialist Disability Accommodation. Our houses are light and airy; open plan and very spacious. We are SDA Developers and a registered SDA Provider who specialise in High Physical Support homes. All our SDA houses are designed to the highest specifications and physical support SDA certification criteria and are totally independently 3rd party approved.

Disclaimer

Trusted property platform, SDAPropertyListing.com.au. Explore listings after reading and understanding the provided disclaimer.

©2024 SDAPropertylisting.com.au All rights reserved
Design by OnSolve