Home Search Results Villa / Duplex / Townhouse 1 SDA + OOA + Guest Room, in North Mackay
11 months ago
947 Views

1 SDA + OOA + Guest Room, in North Mackay

13 Swayne St, North Mackay QLD 4740, Australia
Queensland (QLD)
Property Type: Villa / Duplex / Townhouse
Category: Rental
SDA Designs Type: High Physical Support
Bedrooms: 3
Bathrooms: 2
Toilets: 2
Standard Parking: 1
Number of SDA residents: 1

Dwelling Facilities

Accessible Features
Broadband internet available
Built-in Wardrobes
Cooling
Dishwasher
Emergency Power Backup
Ensuite
Heating
Onsite Overnight Assistance
Outdoor Area
Wheelchair Accessible

1 SDA + OOA + Guest Room, in North Mackay

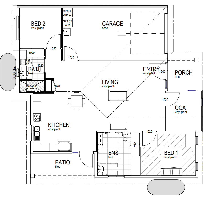
This HPS dwelling is fully NDIS certified and compliant to meet the most up to date SDA guidelines.

Equipped with a modern interior, including the following features:

• 1 HPS bedroom, with an ensuite and SDA accessibility options, split system air conditioning and capacity for ceiling hoists if required.

• OOA bedroom for onsite overnight support

• Guest bedroom for friends or family

• TV in each room

• Modern kitchen with:

o a height-adjustable bench top,

o dish drawer dishwasher,

o Caesarstone benchtops,

o strip lighting to the overhead cupboards

o bright lighting, filled with natural light

• Large living room

• Spacious Dining room

• Separate laundry, with washer and dryer provided.

Contact Kylie Peirce on 0493 028 591 / k.peirce@horizonsdacare.com.au. for more information.

*All imagery is for illustrative purposes only and represents finishes similar to this property.

Disclaimer

Trusted property platform, SDAPropertyListing.com.au. Explore listings after reading and understanding the provided disclaimer.

©2024 SDAPropertylisting.com.au All rights reserved
Design by OnSolve