Home Search Results House 2 HPS Bedrooms + 1 OOA + Guest Room + Media Room, in Bakers Creek
2 years ago
1046 Views

2 HPS Bedrooms + 1 OOA + Guest Room + Media Room, in Bakers Creek

30 Billabong Cres, Bakers Creek QLD 4740, Australia
Queensland (QLD)
Property Type: House
Category: Rental
SDA Designs Type: High Physical Support
Bedrooms: 4
Bathrooms: 3
Toilets: 3
Standard Parking: 2
Number of SDA residents: 2

Dwelling Facilities

Accessible Features
Broadband internet available
Built-in Wardrobes
Cooling
Dishwasher
Ensuite
Intercom
Onsite Overnight Assistance
Outdoor Area

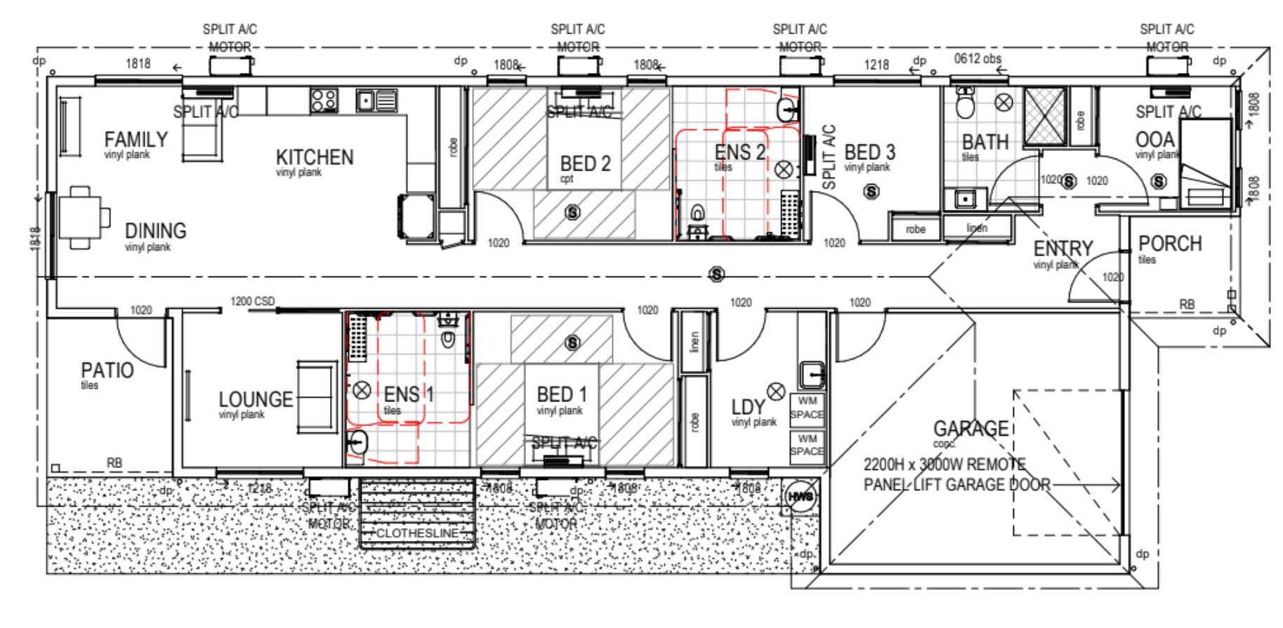
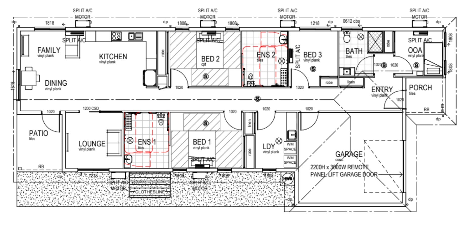
This spacious 2 HPS bedroom + OOA + Guest Room + Media Room home, is located in Baker’s Creek, QLD, and is designed for HPS participants, with a OOA bedroom for onsite overnight support.

It can be fully furnished or you can bring your own furnishings.

This house is fully NDIS certified and compliant to meet the most up to date SDA guidelines.

This home has a modern interior, with the following features:

* 2 large bedrooms, each with an ensuite and SDA accessibility options, split system air conditioning and capacity for ceiling hoists if required.

* OOA bedroom for onsite overnight support

* Guest room

* Media Room

* TV in each room

* Modern kitchen with:

– a height-adjustable bench top,

– dish drawer dishwasher,

– Caesarstone benchtops,

– strip lighting to the overhead cupboards

– bright lighting, filled with natural light

* Large living room

* Spacious Dining room

* Separate laundry, with washer and dryer provided.

Contact Michael Knights on 0409 018 778 / michael@horizonpropertyalliance.com.au or Kylie Peirce on 0493 028 591 / k.peirce@horizonsdacare.com.au. for more information.

Disclaimer

Trusted property platform, SDAPropertyListing.com.au. Explore listings after reading and understanding the provided disclaimer.

©2024 SDAPropertylisting.com.au All rights reserved
Design by OnSolve