Home Search Results House 2 SDA (Robust or Improved Liveability) + OOA + Media Room, Available Now in Bahrs Scrub
10 months ago
1046 Views

2 SDA (Robust or Improved Liveability) + OOA + Media Room, Available Now in Bahrs Scrub

32 Roselea Ave, Bahrs Scrub QLD 4207, Australia
Queensland (QLD)
Property Type: House
Category: Rental
SDA Designs Type: Improved Livability
Bedrooms: 3
Bathrooms: 3
Toilets: 4
Standard Parking: 1
Number of SDA residents: 2

Dwelling Facilities

Accessible Features
Breakout Room
Broadband internet available
Built-in Wardrobes
Cooling
Dishwasher
Ensuite
Furnished
Onsite Overnight Assistance
Outdoor Area
Wheelchair Accessible

2 SDA (Robust or Improved Liveability) + OOA + Media Room, Available Now in Bahrs Scrub

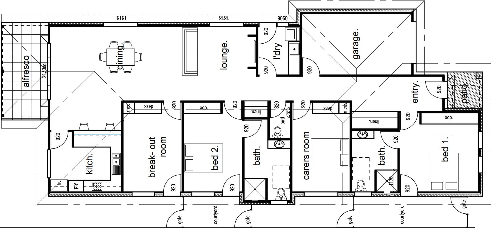
This spacious 2 SDA Room (Robust or Improved Liveability) + OOA + Media / Break-out room home, is located in Bahrs Scrub, QLD, and is designed for up to 2 Robust or Improved Liveability participants, with a OOA bedroom for onsite overnight support.

This house is fully NDIS certified and compliant to meet the most up to date SDA guidelines.

Two ensuite bathrooms adorn the first 2 bedrooms, and there is a separate bathroom for the third bedroom. There is also an OOA room for a support worker or family member + a powder room with toilet, and a separate Break-out or Media Room. Fully air conditioned, wheelchair access to all internal and external areas, and secure with a lock up garage.

The spacious open plan living, that flows onto the large covered alfresco area, is complimented by a modern kitchen with: dishwasher, Caesarstone benchtops, strip lighting to the overhead cupboards bright lighting, filled with natural light

Contact Kylie Peirce on 0493 028 591 / k.peirce@horizonsdacare.com.au for more information.

Disclaimer

Trusted property platform, SDAPropertyListing.com.au. Explore listings after reading and understanding the provided disclaimer.

©2024 SDAPropertylisting.com.au All rights reserved
Design by OnSolve