Home Search Results House 2 SDA (Robust or Improved Liveability) + OOA + Media Room, Available Now in Blacks Beach
11 months ago
715 Views

2 SDA (Robust or Improved Liveability) + OOA + Media Room, Available Now in Blacks Beach

39 Chenoweth Dr, Blacks Beach QLD 4740, Australia
Queensland (QLD)
Property Type: House
Category: Rental
SDA Designs Type: Improved Livability
Bedrooms: 3
Bathrooms: 3
Toilets: 3
Standard Parking: 1
Number of SDA residents: 2

Dwelling Facilities

Accessible Features
Broadband internet available
Built-in Wardrobes
Cooling
Dishwasher
Ensuite
Heating
Onsite Overnight Assistance
Outdoor Area
Wheelchair Accessible

2 SDA (Robust or Improved Liveability) + OOA + Media Room, Available Now in Blacks Beach

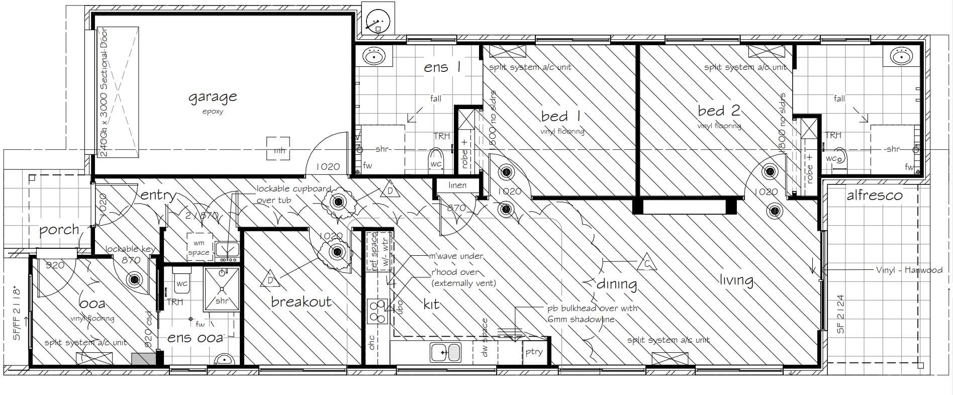
This spacious 2 SDA Room (Robust or Improved Liveability) + OOA + Media room home, is located in Blacks Beach, QLD, and is designed for up to 2 Robust or Improved Liveability participants, with a OOA bedroom for onsite overnight support.

It can be fully furnished or you can bring your own furnishings.

This house is fully NDIS certified and compliant to meet the most up to date SDA guidelines.

This home has a modern interior, with the following features:

* 2 large bedrooms, each with an ensuite and SDA accessibility options, split system air conditioning and capacity for ceiling hoists if required.

* OOA bedroom for onsite overnight support

* Separate Media room, or Breakout Room for Robust Participants.

* Modern kitchen with: dishwasher, Caesarstone benchtops, strip lighting to the overhead cupboards bright lighting, filled with natural light

* Large living room

* Spacious Dining room

Contact Kylie Peirce on 0493 028 591 / k.peirce@horizonsdacare.com.au. for more information.

*Some imagery may be for illustrative purposes only and represents finishes similar to this property.

Disclaimer

Trusted property platform, SDAPropertyListing.com.au. Explore listings after reading and understanding the provided disclaimer.

©2024 SDAPropertylisting.com.au All rights reserved
Design by OnSolve