Home Search Results House 3 Improved Liveabilty Rooms + OOA, in Currajong
9 months ago
883 Views

3 Improved Liveabilty Rooms + OOA, in Currajong

141B Bayswater Rd, Currajong QLD 4812, Australia
Queensland (QLD)
Property Type: House
Category: Rental
SDA Designs Type: Improved Livability
Bedrooms: 4
Bathrooms: 4
Toilets: 4
Standard Parking: 2
Accessible Parkings: 1
Number of SDA residents: 3

Dwelling Facilities

Accessible Features
Broadband internet available
Built-in Wardrobes
Cooling
Dishwasher
Ensuite
Onsite Overnight Assistance
Outdoor Area
Study Area
Wheelchair Accessible

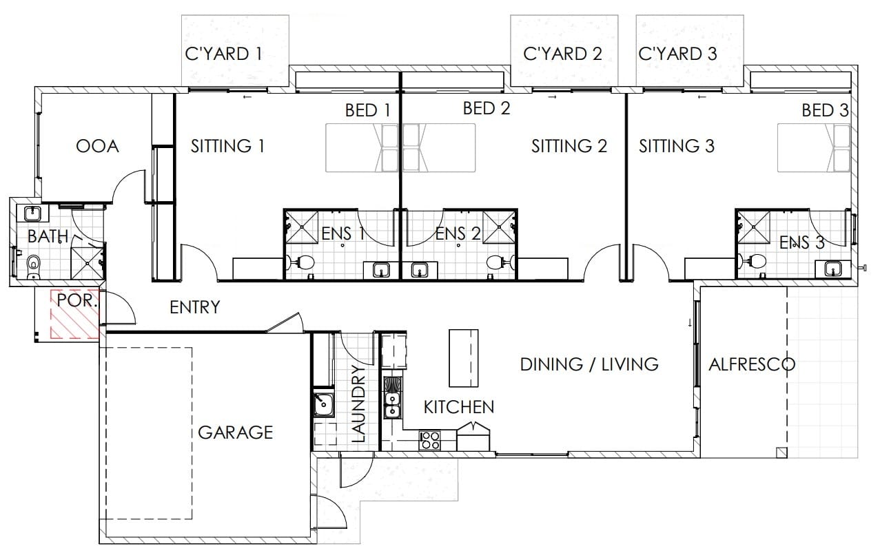
3 Improved Liveabilty Rooms + OOA, in Currajong

Horizon SDA is dedicated to helping you obtain Specialised Disability Accommodation. You’ll be able to live with a high level of autonomy.

This comfortable, smart living SDA (Improved Liveability) fully air conditioned, home is capable of having up to three SDA participants in the Improved Liveability category – with an additional bedroom for a support worker or family member.

* 3 large SDA bedrooms, with ensuites and SDA accessibility options, split system air conditioning, plus a private sitting room and courtyard for each of the 3 SDA rooms.

* OOA bedroom for onsite overnight support

Spacious open plan living

* Modern Kitchen with dishwasher, Caesarstone benchtops, + more

* Wheelchair accessibility to all internal and external areas

* Accessible features (no steps, non slip flooring, bathroom with provision for grab rails)

* Heating and cooling

* Close to medical facilities

* Close to shopping

* Close to transport

For more information, contact Kylie Peirce on 1300 421 068 or k.peirce@horizonsdacare.com.au

Disclaimer

Trusted property platform, SDAPropertyListing.com.au. Explore listings after reading and understanding the provided disclaimer.

©2024 SDAPropertylisting.com.au All rights reserved
Design by OnSolve