Home Search Results House SDA Certified Home with Improved Liveability or Robust + OOA in Point Vernon
1 year ago
952 Views

SDA Certified Home with Improved Liveability or Robust + OOA in Point Vernon

Point Vernon QLD
Queensland (QLD)
Property Type: House
Category: Rental
SDA Designs Type: Robust
Bedrooms: 4
Bathrooms: 3
Toilets: 4
Standard Parking: 2
Number of SDA residents: 2

Dwelling Facilities

Accessible Features
Broadband internet available
Built-in Wardrobes
Cooling
Dishwasher
Ensuite
Heating
Onsite Overnight Assistance
Outdoor Area

Horizon SDA is here to help you obtain Specialised Disability Accommodation. We are SDA Developers and a registered SDA Provider who specialise in open plan and spacious High Physical Support SDA homes.
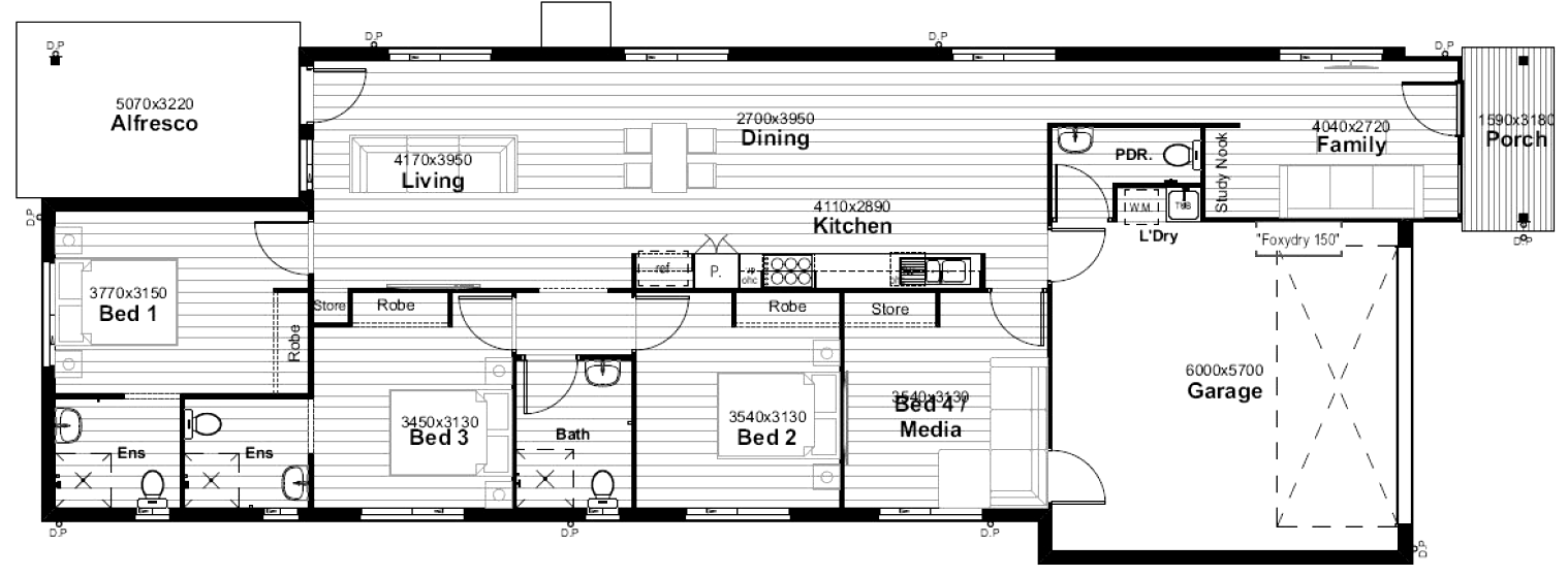
This residence is a comfortable SDA home that can house one Robust Participant plus an additional two Participants at the Improved Liveability level, or potentially three Improved Liveability Participants.
Two ensuite bathrooms adorn the first 2 bedrooms, and thereis a separate bathroom for the third bedroom. There is also an OOA room for a support worker or family member + a powder room with toilet. Fully air conditioned, wheelchair access to all internal and external areas, and secure with a lock up double garage.
All our SDA houses are designed to the highest specifications and physical support SDA certification criteria and are totally independently 3rd party approved.
Contact Kylie Peirce for more information on 1300 421 068 or k.peirce@horizonsdacare.com.au

*Digital staging has been used in some photos, and should be used as a guide only.

Disclaimer

Trusted property platform, SDAPropertyListing.com.au. Explore listings after reading and understanding the provided disclaimer.

©2024 SDAPropertylisting.com.au All rights reserved
Design by OnSolve