Home Search Results House 3 SDA + OOA Available in Torquay
2 months ago
313 Views

3 SDA + OOA Available in Torquay

14 Ryan Court, Torquay QLD 4655, Australia
Queensland (QLD)
Property Type: House
Category: Rental
$495
SDA Designs Type: Improved Livability
Bedrooms: 4
Bathrooms: 3
Toilets: 4
Standard Parking: 2
Number of SDA residents: 3

Dwelling Facilities

Accessible Features
Broadband internet available
Built-in Wardrobes
Cooling
Dishwasher
Ensuite
Heating
Onsite Overnight Assistance
Outdoor Area
Wheelchair Accessible

3 SDA + OOA Available in Torquay

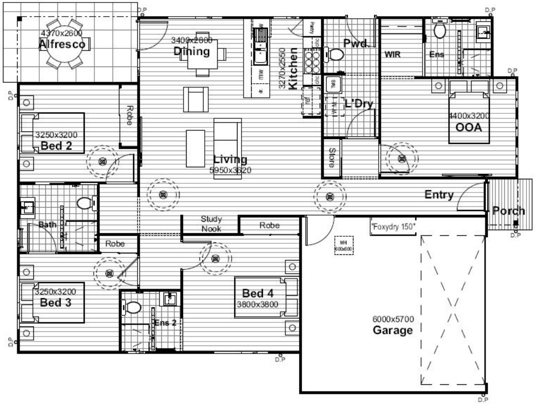
3 SDA Rooms are available in this large, lowset residence that can house three Improved Liveability participants. There are three bathrooms plus a separate fourth toilet, the property is is fully air conditioned, and there is wheelchair accessible to all internal and external areas.

  • 3 SDA bedrooms, with ensuites and SDA accessibility options, and split system air conditioning
  • OOA bedroom for onsite overnight support
  • Spacious open plan living
  • Covered outdoor al-fresco area

Horizon SDA is here to help you obtain Specialist Disability Accommodation. Our houses are light and airy; open plan and very spacious. We are SDA Developers and a registered SDA Provider who specialise in High Physical Support homes. All our SDA houses are designed to the highest specifications and physical support SDA certification criteria and are totally independently 3rd party approved.

Horizon SDA is here to help you obtain Specialist Disability Accommodation. Our houses are light and airy; open plan and very spacious. We are SDA Developers and a registered SDA Provider who specialise in High Physical Support homes. All our SDA houses are designed to the highest specifications and physical support SDA certification criteria and are totally independently 3rd party approved.

Disclaimer

Trusted property platform, SDAPropertyListing.com.au. Explore listings after reading and understanding the provided disclaimer.

©2024 SDAPropertylisting.com.au All rights reserved
Design by OnSolve