Home Search Results House 3 SDA Rooms (HPS) + OOA, Available in Bohle Plains!
1 year ago
1206 Views

3 SDA Rooms (HPS) + OOA, Available in Bohle Plains!

3 Liriope Cr, Bohle Plains QLD 4817, Australia
Queensland (QLD)
Property Type: House
Category: Rental
SDA Designs Type: High Physical Support
Bedrooms: 4
Bathrooms: 4
Toilets: 4
Standard Parking: 1
Accessible Parkings: 1
Number of SDA residents: 3

Dwelling Facilities

Accessible Features
Broadband internet available
Built-in Wardrobes
Cooling
Dishwasher
Emergency Power Backup
Ensuite
Onsite Overnight Assistance
Outdoor Area
Wheelchair Accessible

3 SDA Rooms (HPS) + OOA, Available in Bohle Plains!

Horizon SDA is here to help you obtain Specialist Disability Accommodation. Our houses are light and airy; open plan and very spacious. We are SDA Developers and a registered SDA Provider who specialise in High Physical Support homes.

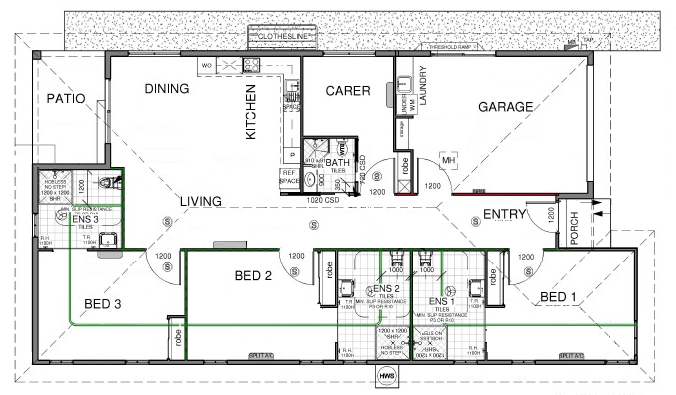
This residence can house up to three SDA participants at the High Physical Support level, with an OOA Room for a support worker or family member.

Comfortable, smart living SDA, with high physical supported ensuite bathrooms to each of the SDA rooms, ensuite bathroom for the OOA room, plus a separate powder room with additional toilet. Fully air conditioned, with security screens, wheelchair accessible to all internal and external areas, and completely secure with a garage panel lift door.

• 3 HPS bedrooms, with ensuites and SDA accessibility options, split system air conditioning and capacity for ceiling hoists if required.

• OOA bedroom for onsite overnight support

• Modern kitchen with:

o a height-adjustable bench top,

o dish drawer dishwasher,

o Caesarstone benchtops,

o strip lighting to the overhead cupboards

o bright lighting, filled with natural light

• Large living room• Spacious Dining room

All our SDA houses are designed to the highest specifications and physical support SDA certification criteria and are totally independently 3rd party approved.

Horizon SDA Care can customise the homes to meet the needs of individual participants and come equipped with cutting-edge smart-home technology, such as the ability to control lights, blinds, access doors, air conditioning, and intercom systems from a personal device.

Contact Kylie Peirce on 0493 028 591 / k.peirce@horizonsdacare.com.au. for more information.

Disclaimer

Trusted property platform, SDAPropertyListing.com.au. Explore listings after reading and understanding the provided disclaimer.

©2024 SDAPropertylisting.com.au All rights reserved
Design by OnSolve