Home Search Results House Townsville – Fully furnished and Pet friendly!
2 years ago
1036 Views

Townsville – Fully furnished and Pet friendly!

301 Pinnacle Dr, Rasmussen QLD 4815, Australia
Queensland (QLD)
Property Type: House
Category: Rental
SDA Designs Type: High Physical Support
Bedrooms: 3
Bathrooms: 3
Toilets: 3
Standard Parking: 1
Number of SDA residents: 2

Dwelling Facilities

Accessible Features
Broadband internet available
Built-in Wardrobes
Cooling
Dishwasher
Ensuite
Good Energy Efficiency Rating
Heating
Intercom
Outdoor Area
Wheelchair Accessible

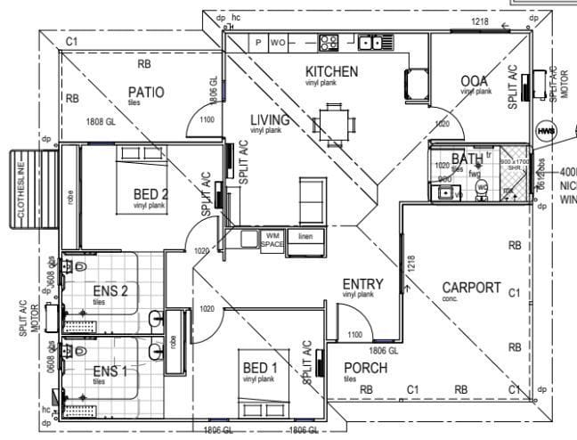
2 HPS + 1 OOA Home, Available in Rasmussen

Horizon SDA is here to help you obtain Specialised Disability Accommodation. Our houses are light and airy; open plan and very spacious.

This residence offers a comfortable smart living 2 HPS Room + OOA SDA home with ensuite bathrooms, fully air conditioned, security screens, and wheelchair accessible to all internal and external areas.

Home features you may enjoy:

• Residents can socialise around in the spacious lounge and dining area, or catch up with the other residents at the large kitchen island featuring a low-level bench.

• The kitchen has been designed accessible to allow residents to enjoy participating in meal preparation and cooking.

• With functionality in front of mind, the property offers wide corridors, special bathrooms, and plenty of personal storage.

• Externally the outdoor BBQ entertaining area provides a tranquil area for the residents to enjoy

All of our SDA houses are built to the highest standards, meet SDA certification criteria, and are completely independently 3rd party approved.

Contact Kylie Peirce on 0493 028 591 / k.peirce@horizonsdacare.com.au. for more information.

Disclaimer

Trusted property platform, SDAPropertyListing.com.au. Explore listings after reading and understanding the provided disclaimer.

©2024 SDAPropertylisting.com.au All rights reserved
Design by OnSolve