Home Search Results 2 SDA + OOA + Guest Room Home, in Andergrove
2 years ago
942 Views

2 SDA + OOA + Guest Room Home, in Andergrove

17 Chester Cres, Andergrove QLD 4740, Australia
Queensland (QLD)
Category: Rental
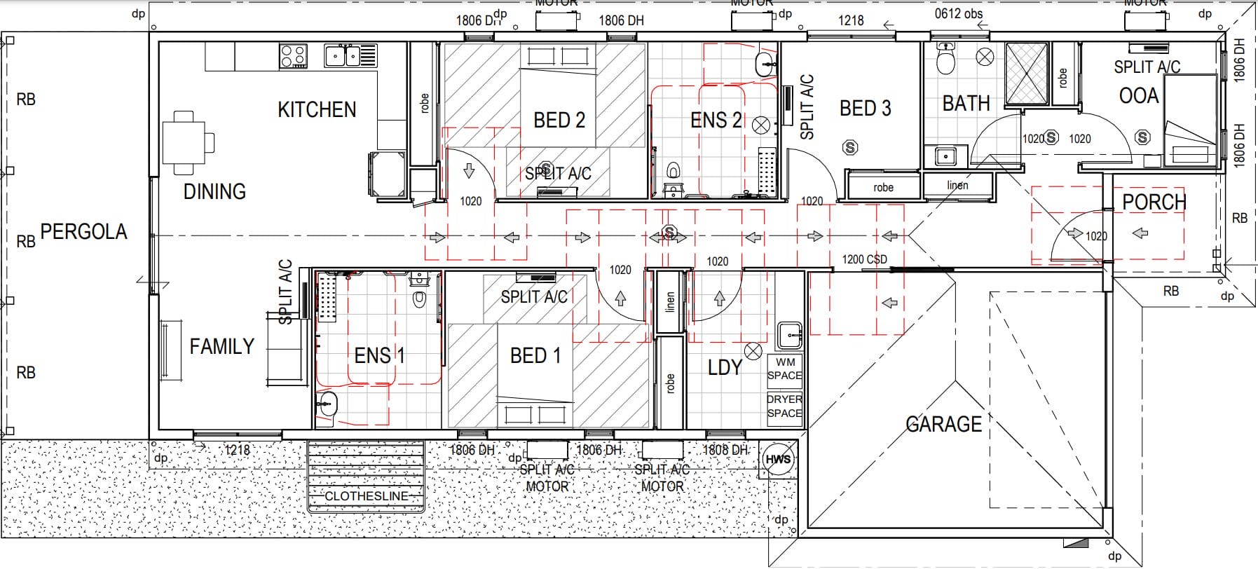
SDA Designs Type: High Physical Support
Bedrooms: 4
Bathrooms: 3
Toilets: 3
Standard Parking: 2
Number of SDA residents: 2

Dwelling Facilities

Accessible Features
Broadband internet available
Built-in Wardrobes
Cooling
Dishwasher
Emergency Power Backup
Ensuite
Heating
Intercom
Outdoor Area
Wheelchair Accessible

This HPS home is fully NDIS certified and compliant to meet the most up to date SDA guidelines.

This home has a modern interior, with the following features:

* 2 HPS bedroom, with an ensuiteĀ and SDA accessibility options, split system air conditioning and capacity for ceiling hoists if required.

* OOA bedroom for onsite overnight support

* Guest Room for family or friends

* TV in each room

* Modern kitchen with:

a height-adjustable bench top,

dish drawer dishwasher,

Caesarstone benchtops,

strip lighting to the overhead cupboards

bright lighting, filled with natural light

* Large living room

* Spacious Dining room

* Separate laundry, with washer and dryer provided.

Contact Kylie Peirce on 0493 028 591 / k.peirce@horizonsdacare.com.au. for more information.

NOTE: All imagery is for illustrative purposes only and represents finishes similar to this property.

Disclaimer

Trusted property platform, SDAPropertyListing.com.au. Explore listings after reading and understanding the provided disclaimer.

©2024 SDAPropertylisting.com.au All rights reserved
Design by OnSolve