Home Search Results House Spacious 3 HPS bedroom + OOA room home, in Ripley
1 year ago
1251 Views

Spacious 3 HPS bedroom + OOA room home, in Ripley

11 Salsa St, Ripley QLD 4306, Australia
Queensland (QLD)
Property Type: House
Category: Rental
SDA Designs Type: High Physical Support
Bedrooms: 4
Bathrooms: 4
Toilets: 4
Standard Parking: 2
Number of SDA residents: 3

Dwelling Facilities

Accessible Features
Broadband internet available
Built-in Wardrobes
Cooling
Dishwasher
Emergency Power Backup
Ensuite
Heating
Intercom
Onsite Overnight Assistance
Outdoor Area
Wheelchair Accessible

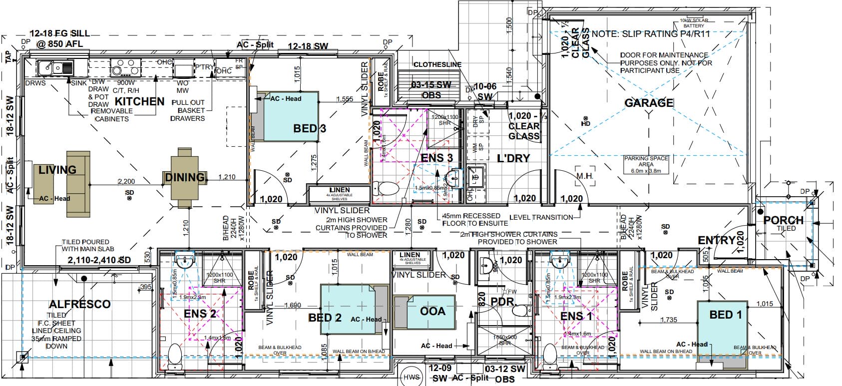
This spacious 3 HPS bedroom + OOA room home, is located in Ripley, QLD, and is designed for up to 3 HPS participants, with a OOA bedroom for onsite overnight support.

It can be fully furnished or you can bring your own furnishings.

This house is fully NDIS certified and compliant to meet the most up to date SDA guidelines.

This home has a modern interior, with the following features:

* 3 large bedrooms, each with an ensuite and SDA accessibility options, split system air conditioning and capacity for ceiling hoists if required.

* OOA bedroom for onsite overnight support

* TV in each room

* Modern kitchen with: a height-adjustable bench top, dish drawer dishwasher, Caesarstone benchtops, strip lighting to the overhead cupboards bright lighting, filled with natural light

* Large living room

* Spacious Dining room

* Separate laundry, with washer and dryer provided.

Contact Kylie Peirce on 0493 028 591 / k.peirce@horizonsdacare.com.au. for more information.

*Some imagery may be for illustrative purposes only and represents finishes similar to this property.

This spacious 3 HPS bedroom + OOA room home, is located in Ripley, QLD, and is designed for up to 3 HPS participants, with a OOA bedroom for onsite overnight support.

It can be fully furnished or you can bring your own furnishings.

This house is fully NDIS certified and compliant to meet the most up to date SDA guidelines.

This home has a modern interior, with the following features:

* 3 large bedrooms, each with an ensuite and SDA accessibility options, split system air conditioning and capacity for ceiling hoists if required.

* OOA bedroom for onsite overnight support

* TV in each room

* Modern kitchen with: a height-adjustable bench top, dish drawer dishwasher, Caesarstone benchtops, strip lighting to the overhead cupboards bright lighting, filled with natural light

* Large living room

* Spacious Dining room

* Separate laundry, with washer and dryer provided.

Contact Kylie Peirce on 0493 028 591 / k.peirce@horizonsdacare.com.au. for more information.

*Some imagery may be for illustrative purposes only and represents finishes similar to this property.

Disclaimer

Trusted property platform, SDAPropertyListing.com.au. Explore listings after reading and understanding the provided disclaimer.

©2024 SDAPropertylisting.com.au All rights reserved
Design by OnSolve