Home Search Results High Physical Support SDA Villa ELizabeth North
2 years ago
1078 Views

High Physical Support SDA Villa ELizabeth North

Elizabeth North SA 5113
South Australia (SA)
Category: Rental
SDA Designs Type: High Physical Support
Bedrooms: 2
Bathrooms: 2
Toilets: 2
Standard Parking: 1
Accessible Parkings: 1
Number of SDA residents: 2

Dwelling Facilities

Accessible Features
Automatic Doors
Broadband internet available
Built-in Wardrobes
Cooling
Dishwasher
Emergency Power Backup
Ensuite
Good Energy Efficiency Rating
Heating
Onsite Overnight Assistance
Outdoor Area
Solar Panels
Wheelchair Accessible

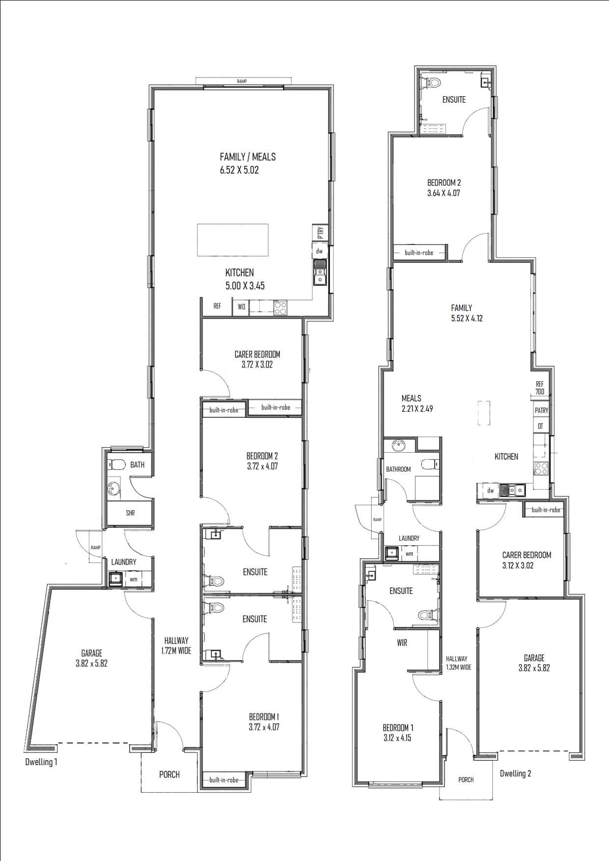
This property currently almost finished construction. Once completed this modern residence boasts three meticulously crafted bedrooms; Two dedicated for participants and another as an onsite-overnight accommodation for a carer, The heart of the home features a spacious living and entertaining space, seamlessly leading to an outdoor veranda perfect for hosting. Added conveniences include an independent laundry, an accessible garage, and a sizable private garden.

The well-equipped kitchen showcases innovative and inclusive designs, ensuring both functionality and style. With an impressive 8-star energy efficiency rating, this property is also solar-equipped, promoting sustainable living. Both the front and rear garden spaces are designed for low maintenance, offering ample space for a variety of outdoor activities.

This property will be more than a house; it’s a holistic home, ready to welcome its residents. Its prime location places it within proximity to essential amenities including shops, Elizabeth shopping centre, Munno Para shopping centre, medical centre, hospital, bus stops, and train stations, making daily commute and activities a breeze.

All vacant at this stage

Disclaimer

Trusted property platform, SDAPropertyListing.com.au. Explore listings after reading and understanding the provided disclaimer.

©2024 SDAPropertylisting.com.au All rights reserved
Design by OnSolve